PACIFIC URBANISM

 CASE STUDY

Centinela

CULVER CITY | LOS ANGELES, CA

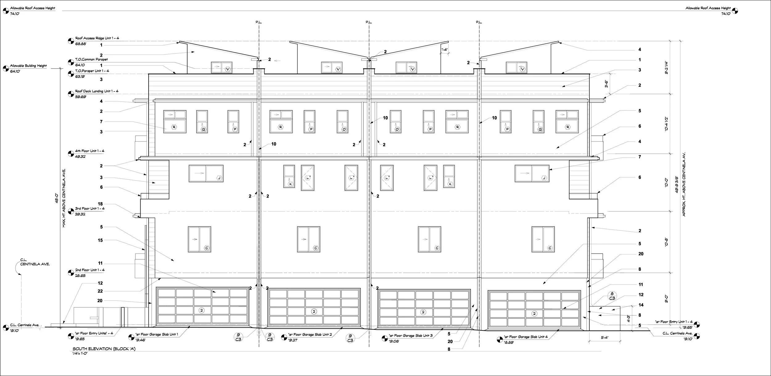
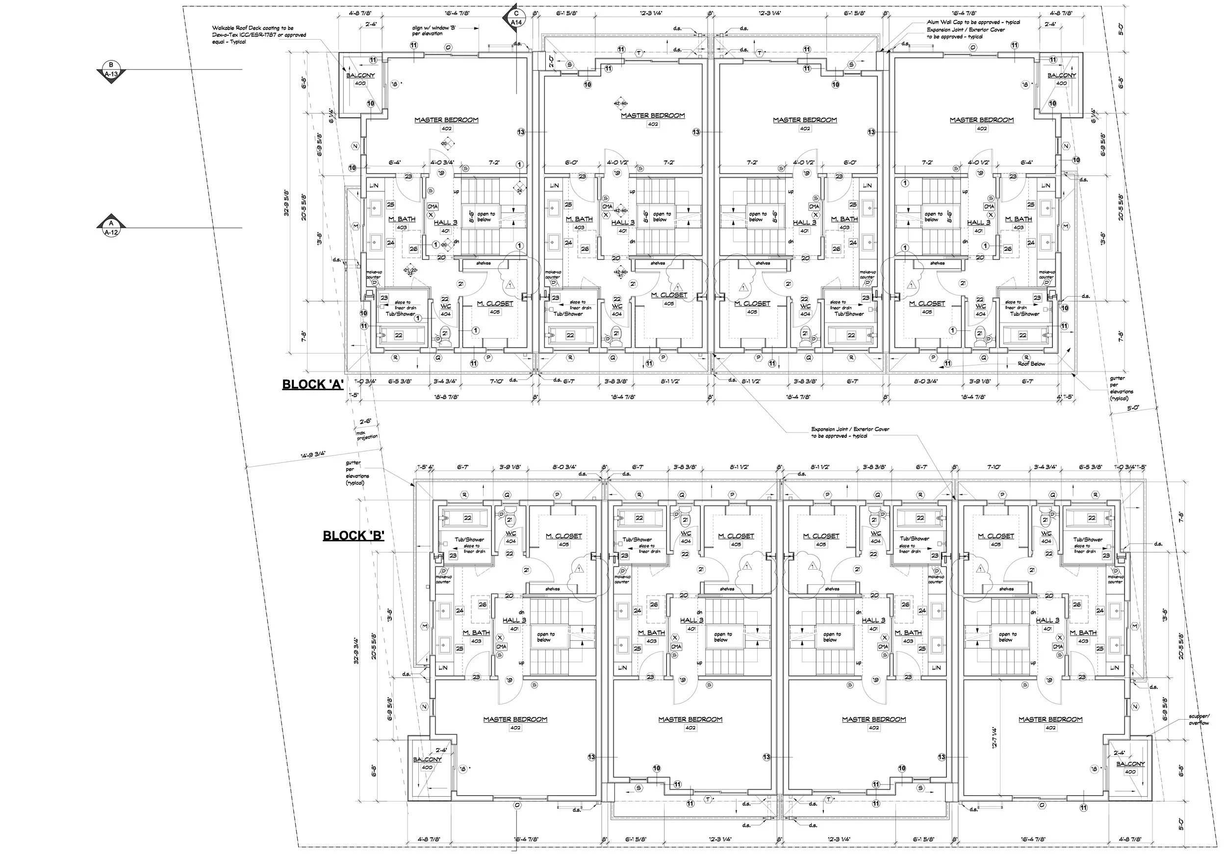
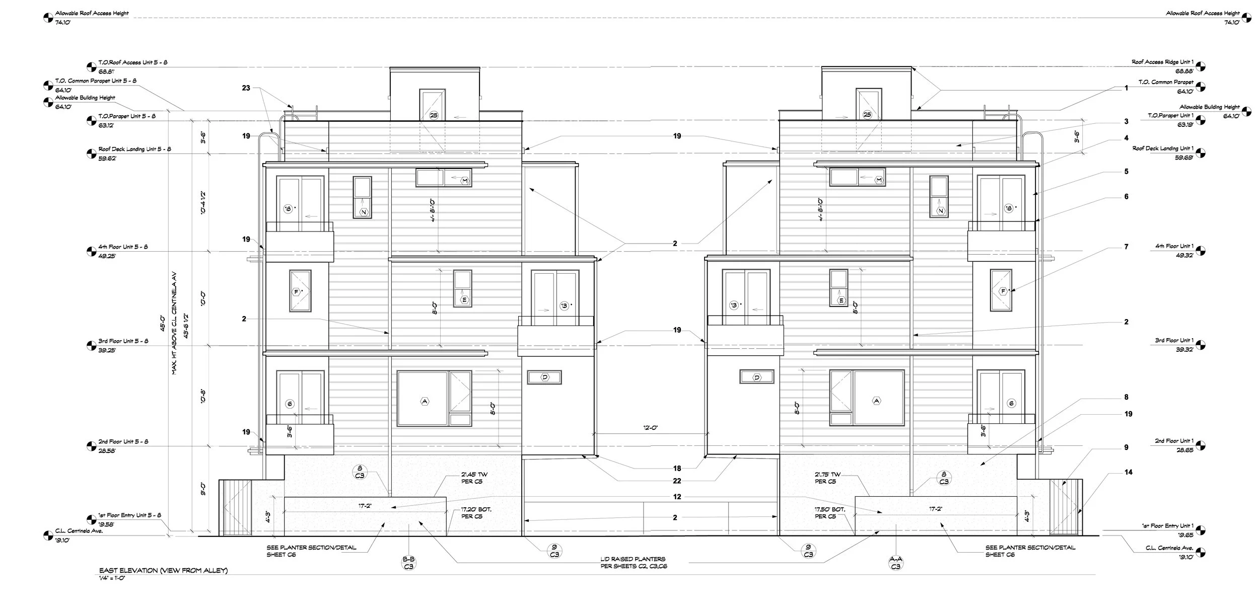
The issues Los Angeles faces of high housing prices do not relate to those looking for affordable housing. Thus, this project takes on this crisis by designing eight new housing units as an infill to increase housing densification. The process to accomplish this was long. The primary purpose was to tie three lots and make them into one, subdivided into small lots. Once the process was approved and allowed for new townhomes to be designed, the design goals were to have accommodating areas for the users to live in. With shared lots, certain aspects of privacy were removed to have this commonality able to work. They have common areas within the property, allowing property owners to use these areas to access their building, these shared spaces such as a typical driveway, walkways, and common easements. The project consists of eight townhomes with four floors, a downstairs garage, three bedrooms, and a roof deck. Overall creating large areas to accommodate a single family.

Owner: Centarus LP

Architects: Payson Denney Architects

Permitting: Pacific Urbanism

 
IMG_20211201_130146890_HDR.2.jpg